Trilocale in vendita

Adro, Via Sole delle Alpi - Torbiato
€ 230.000
3 locali 3 locali
140 Mq 140 Mq
1 bagno 1 bagno

Trilocale in vendita

Adro, Via Sole delle Alpi - Torbiato

Descrizione annuncio

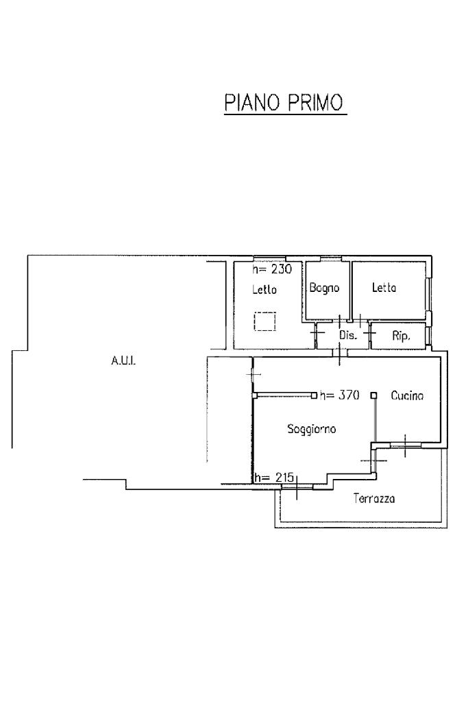
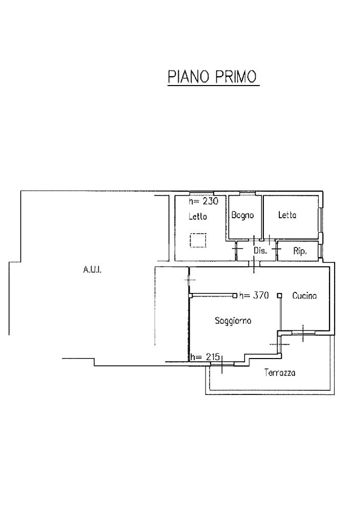
Torbiato di Adro: Proponiamo in vendita un raffinato trilocale dal fascino esclusivo, valorizzato da eleganti travi a vista che conferiscono agli ambienti un’atmosfera calda e ricercata.

L’ingresso si apre su una luminosa zona living con soggiorno e cucina a vista, uno spazio armonioso e accogliente, ideale per momenti di relax e convivialità, caratterizzato da uno stile contemporaneo e curato nei dettagli.

Un funzionale disimpegno accompagna alla zona notte, composta da una spaziosa camera matrimoniale, una cameretta e un bagno moderno con doccia multifunzione, rifinito con materiali di gusto attuale. Completa la proprietà un pratico locale lavanderia, pensato per garantire ordine ed efficienza nella quotidianità.

All’esterno, un grazioso terrazzo privato rappresenta lo spazio ideale per piacevoli momenti all’aria aperta, mentre il giardino di proprietà offre un’oasi verde riservata e rilassante.

L’immobile è inoltre dotato di autorimessa singola, sinonimo di comodità e sicurezza. Attualmente in fase di frazionamento.

Assenza di spese condominiali.

La posizione, tranquilla ma ben collegata ai principali servizi, rende questa soluzione perfetta per chi è alla ricerca di un’abitazione elegante, funzionale e pronta da vivere.

Una proposta di pregio, dove stile, comfort e qualità si fondono in perfetto equilibrio.

Per ulteriori informazioni, rivolgersi in agenzia.

Mostra tutto

Nelle vicinanze

Trasporto pubblico Trasporto pubblico
Borgonato-Adro
Borgonato-Adro
2,5 Km
Trasporto pubblico
2,2 Km
Ricariche auto elettriche Ricariche auto elettriche
Ronco Calino
710 m
Franciacorta Golf Club
1,9 Km
Scuole Scuole
Istituto Madonna della Neve
2,1 Km
Scuole
2,2 Km
Polo Scolastico Gianfranco Miglio
2,2 Km
Farmacia Farmacia
Farmacia
2,2 Km
Supermercati Supermercati
Sisa
2,9 Km
Bar Bar
Dispensa Pani e Vini Franciacorta
330 m
Number one
1,1 Km
Bar
1,3 Km
Bar Sport
2,5 Km
Ristoranti Ristoranti
Dispensa Pani e Vini Franciacorta
330 m
Ristorante Locanda La Torre
1,3 Km
Ristorante Pio Nono
1,3 Km
Ristorante Pizzeria Sala
1,5 Km
Albereta
1,5 Km
Mostra tutto

Caratteristiche

Rif.:
61200618
Piano:
1 di 2 (Piano attico)
Box:
1
Posti auto:
1
Terrazzi:
1
Camere da letto:
2
Mostra tutto
Prezzo Prezzo
€ 230.000
Rata mutuo Rata mutuo
€ 1.090 / mese
Spese annue Spese annue
€ 0
Proponi il tuo prezzoProponi il tuo prezzo

Classe Energetica

Questo immobile è esente da classe energetica
Anno di costruzione:
2000
Riscaldamento:
Autonomo
Tipo impianto:
A radiatori
Tipo alimentazione:
Metano

Ti interessa visionare l'immobile?

Fissa un appuntamento  Fissa un appuntamento

Richiedi informazioni

Clicca su Leggi per aprire l'informativa
* Questi campi sono obbligatori

Calcola il tuo mutuo

Semplice e senza impegno
Anticipo

( % )
Mutuo

( % )

pochi semplici passi

inserisci i tuoi dati
Questionario completato
Grazie per aver richiesto un appuntamento senza impegno con un nostro Consulente del Credito e Assicurativo.

Hai inserito correttamente tutti i dati necessari e a breve riceverai una e-mail con un link da convalidare per inviare i tuoi dati.
Affiliato
Immobiliare Curtefranca Srl
Via Principe Umberto, 13 25030 Adro (BS)

Il nostro staff


  • Mauro Fenaroli
    Affiliato

  • Federica Bordogna
    Coordinatrice

  • Jesus Massimo Bergamaschi
    Affiliato

  • Ringza Khatoon
    Affiliata

  • Alessandro Ramera
    Collaboratore

  • Beatrice Salogni
    Collaboratrice

  • Edoardo Tonini
    Collaboratore
Via Principe Umberto, 13 25030 Adro (BS)
Zona: Franciacorta-Adro-Corte Franca
Mostra su mappa
Orari: 9-12,30 14,30-20
Affiliato
Immobiliare Curtefranca Srl
Via Principe Umberto, 13 25030 Adro (BS)

2026 Tecnocasa Franchising S.p.A. - P. IVA 08365160152 - Via Monte Bianco 60/A 20089 Rozzano (MI). Ogni agenzia ha un proprio titolare ed è autonoma. Privacy policy | Policy utilizzo | Cookie policy