Quadrilocale in vendita

Adro, Via lazzaretto
€ 239.000
4 locali 4 locali
297 Mq 297 Mq
2 bagni 2 bagni

Quadrilocale in vendita

Adro, Via lazzaretto

Descrizione annuncio

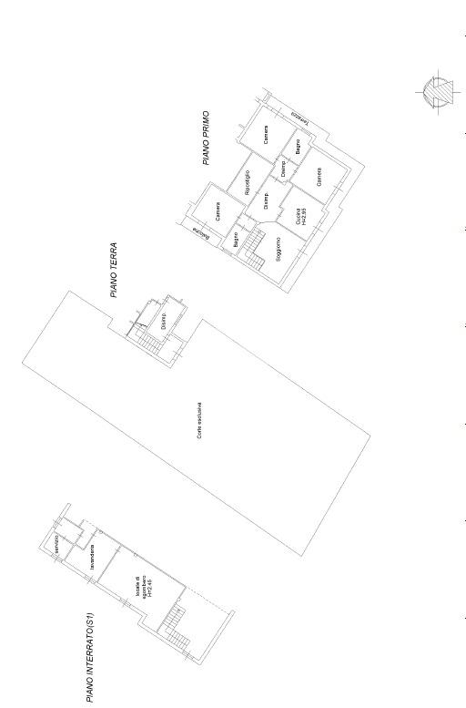
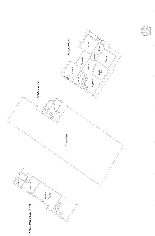
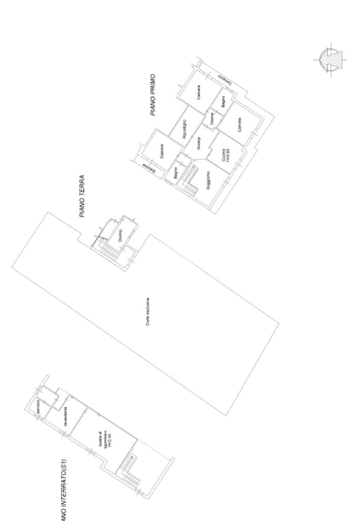
ADRO: Appartamento indipendente quadrilocale con giardino
Proponiamo in vendita un appartamento indipendente di circa 190 mq calpestabili, unico nel suo genere a Adro, con ingresso esclusivo e spazi generosi.

L’immobile offre ampi ambienti luminosi, con camere e soggiorno che si affacciano su balconi panoramici. Dispone di doppi servizi e di una zona interrata versatile, adatta a taverna, cantina o zona hobby.

Il giardino privato di 300 mq, che circonda l’immobile su due lati, offre la possibilità di creare posti auto esterni coperti e di godere di spazi verdi in piena autonomia. Un ampio balcone completa la zona giorno, rendendo l’appartamento ideale per chi ama vivere all’aperto e ricevere ospiti.

Gli interni sono tenuti in modo impeccabile, con finiture integre e perfettamente conservate, pronti per essere abitati.

Ideale anche per investimento, con la possibilità di ricavare due unità abitative separate.

Questa soluzione è perfetta per chi cerca indipendenza, privacy e spazi unici, senza rinunciare alla comodità dei servizi del centro di Adro.
Per chi deve vendere per acquistare, offriamo valutazione e consulenza gratuita.

Caratteristiche principali:
Quadrilocale con doppi servizi
Ingresso indipendente ed esclusivo
190 mq calpestabili
Zona interrata versatile
Giardino privato di 300 mq su due lati, con possibilità di posti auto coperti
Ampi balconi panoramici
Interni perfettamente conservati, pronti da abitare
Ideale per ricavare due unità abitative

Valutazione e consulenza gratuita per chi deve vendere per acquistare

Per ulteriori informazioni o per fissare una visita

Mostra tutto

Nelle vicinanze

Trasporto pubblico Trasporto pubblico
streparava adro
streparava adro
1,3 Km
Trasporto pubblico
2,1 Km
Ricariche auto elettriche Ricariche auto elettriche
Franciacorta Golf Club
2,8 Km
Scuole Scuole
Polo Scolastico Gianfranco Miglio
670 m
Istituto Madonna della Neve
870 m
Scuole
2,2 Km
Farmacia Farmacia
Farmacia
750 m
Supermercati Supermercati
Sisa
300 m
Italmark
1,9 Km
Bar Bar
Bar
280 m
Dispensa Pani e Vini Franciacorta
2,9 Km
900
3,0 Km
Goblin's Pub
3,0 Km
Ristoranti Ristoranti
Trattoria Santa Maria
430 m
Ristorante Pizzeria Madonna della Neve
930 m
Cornaleto
1,2 Km
La Fioca
1,4 Km
Ristorante Locanda La Torre
1,6 Km
Mostra tutto

Caratteristiche

Rif.:
61125448
Piano:
1 di 2 (ultimo Piano)
Posti auto:
3
Balconi:
1
Terrazzi:
1
Camere da letto:
3
Mostra tutto
Prezzo Prezzo
€ 239.000
Rata mutuo Rata mutuo
€ 1.128 / mese
Spese annue Spese annue
€ 0
Proponi il tuo prezzoProponi il tuo prezzo
Immobile valutato con T·Valuta

Classe Energetica

Questo immobile è esente da classe energetica
Anno di costruzione:
1974
Riscaldamento:
Autonomo
Tipo impianto:
A radiatori
Tipo alimentazione:
Metano

Ti interessa visionare l'immobile?

Fissa un appuntamento  Fissa un appuntamento

Richiedi informazioni

Clicca su Leggi per aprire l'informativa
* Questi campi sono obbligatori

Calcola il tuo mutuo

Semplice e senza impegno
Anticipo

( % )
Mutuo

( % )

pochi semplici passi

inserisci i tuoi dati
Questionario completato
Grazie per aver richiesto un appuntamento senza impegno con un nostro Consulente del Credito e Assicurativo.

Hai inserito correttamente tutti i dati necessari e a breve riceverai una e-mail con un link da convalidare per inviare i tuoi dati.
Affiliato
Immobiliare Curtefranca Srl
Via Principe Umberto, 13 25030 Adro (BS)

Il nostro staff


  • Mauro Fenaroli
    Affiliato

  • Ringza Khatoon
    Responsabile

  • Beatrice Salogni
    Collaboratrice

  • Edoardo Tonini
    Collaboratore
Via Principe Umberto, 13 25030 Adro (BS)
Zona: Franciacorta-Adro-Corte Franca
Mostra su mappa
Orari: 9-12,30 14,30-20
Affiliato
Immobiliare Curtefranca Srl
Via Principe Umberto, 13 25030 Adro (BS)

2025 Tecnocasa Franchising S.p.A. - P. IVA 08365160152 - Via Monte Bianco 60/A 20089 Rozzano (MI). Ogni agenzia ha un proprio titolare ed è autonoma. Privacy policy | Policy utilizzo | Cookie policy